São Francisco é o encontro do mar com a natureza no meio urbano de Niterói
Sua reserva, em forma de arquitetura que acolhe e permanece
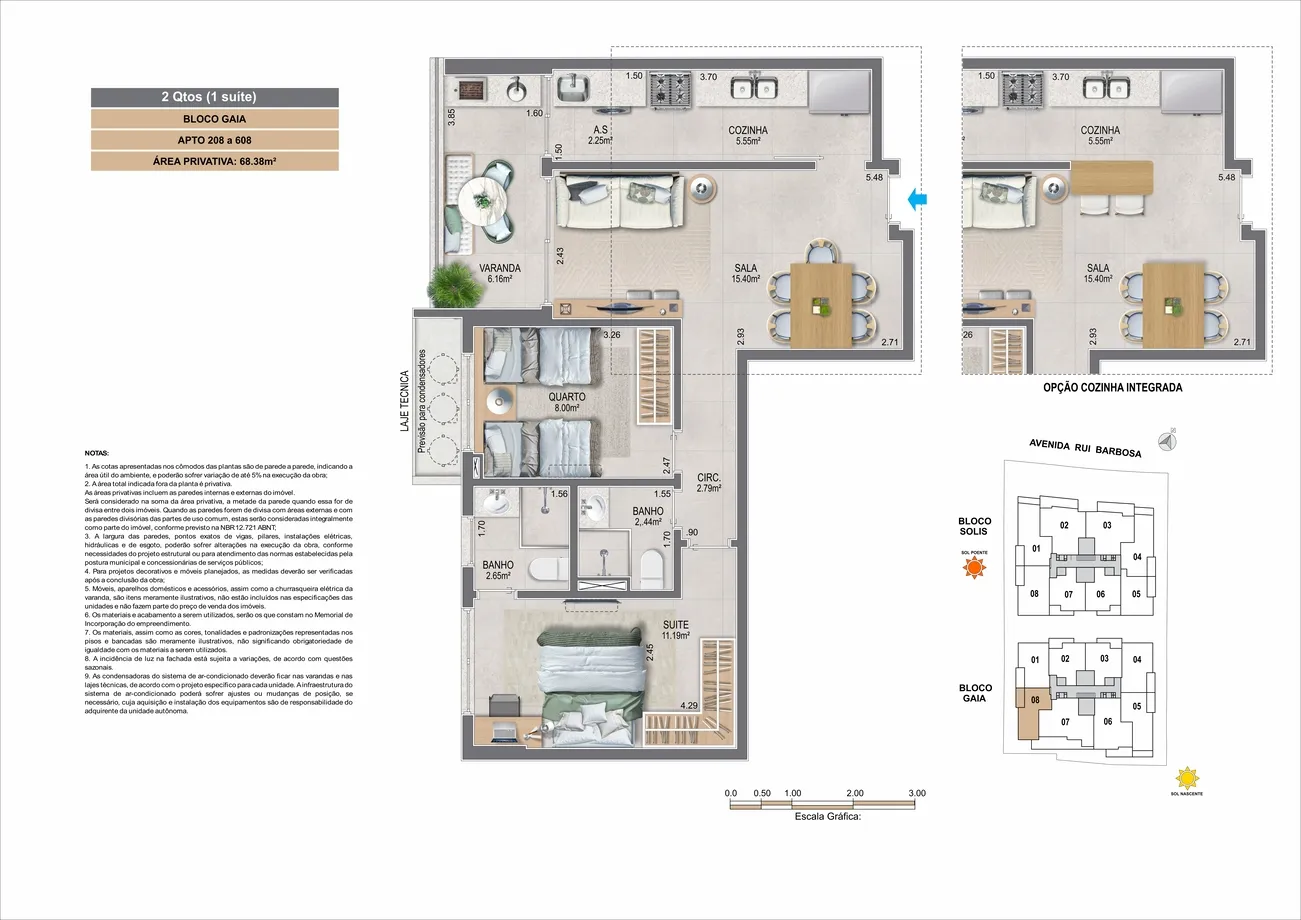
65 a 179m²
2 e 3 quartos
1 ou 2 vagas
Coberturas lineares de 3 quartos e 3 suítes
DIFERENCIAIS
LAZER NO PAVIMENTO INTERMEDIÁRIO
LOCALIZAÇÃO
Av. Rui Barbosa 252, São Francisco
Preencha o formulário
para saber mais
X
